- 物件番号
- 56376-225814
- 情報更新日
- 2025.06.04
| 階数 | 2708 |
|---|---|
| 用途/仕様 | 事務所 |
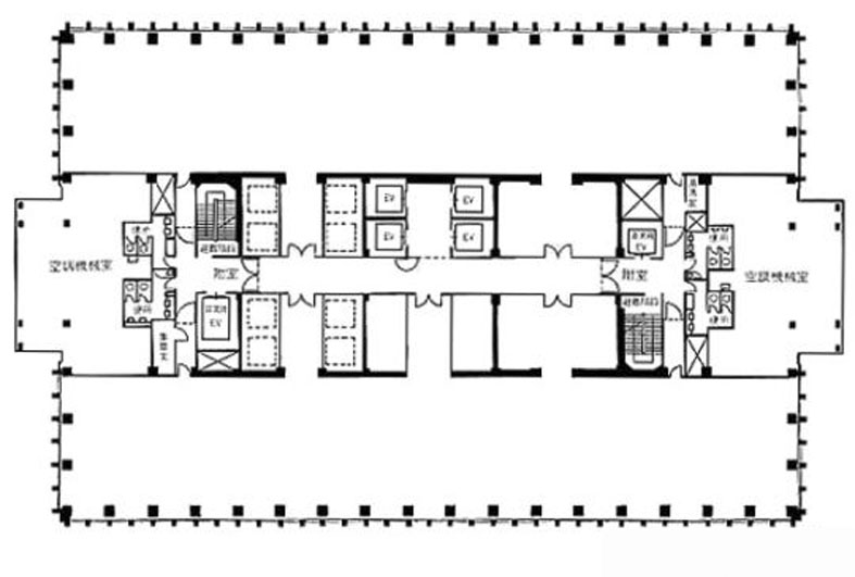
| 面積 | 57.54坪(190.21㎡) |
| 賃料 | |
| 共益費 | |
| 預託金 | |
| 入居日 | |
| 所在地 | 東京都新宿区西新宿1-26-2 |
| 竣工 | 1978年6月 |
| 最寄り駅 |
丸ノ内線 西新宿 徒歩 2分 都営大江戸線 都庁前 徒歩 4分 JR山手線 新宿 徒歩 8分 |
| 構造 | S造 |
ポイント
新宿野村ビルは、1978年竣工のオフィスビルで、東京メトロ丸ノ内線「西新宿」駅(徒歩2分)に位置するハイグレードビルです。西新宿の高層ビル街のシンボル的存在で、地下通路を利用すれば駅まで直接アクセス可能。青梅街道に面し、新宿駅・西武新宿駅・都庁前駅・新宿西口駅からも徒歩圏内の利便性の高い物件です。ぜひ一度ご内覧ください。
無料相談で理想のオフィスを見つけましょう
東京で賃貸オフィスをお探しなら、仲介手数料0円の東京オフィスチェックにお任せください。
移転をお考えの方も、お迷いの方も、メールフォームやお電話でお気軽にご相談ください。
新宿野村ビル のアクセス
新宿野村ビル の募集中区画
| 階数 | 面積(坪) | 賃料(円) | 共益費(円) | 預託金 | 入居可能日 | 検討リスト | 詳細 | |
|---|---|---|---|---|---|---|---|---|
![]() |
34 | 381.86 | 相談 | 相談 | 詳細 | |||
![]() |
37 | 381.86 | 込 | 6ヶ月以内 | 詳細 | |||
![]() |
38 | 391.99 | 込 | 6ヶ月以内 | 詳細 | |||
![]() |
15東5-12 | 72.57 | 3ヶ月以内 | 詳細 | ||||
![]() |
15西5-15 | 105.48 | 3ヶ月以内 | 詳細 | ||||
![]() |
45 | 391.99 | 相談 | 詳細 | ||||
![]() |
43 | 391.99 | 相談 | 詳細 | ||||
![]() |
41 | 386.73 | 相談 | 詳細 | ||||
![]() |
42 | 391.99 | 相談 | 詳細 | ||||
![]() |
39西15-22 | 82.70 | 即 | 詳細 | ||||
![]() |
5西9-14 | 58.32 | 即 | 詳細 | ||||
![]() |
2601 | 48.48 | 6ヶ月以内 | 詳細 | ||||
![]() |
2602 | 27.18 | 込 | 6ヶ月以内 | 詳細 | |||
![]() |
2603 | 45.30 | 込 | 6ヶ月以内 | 詳細 | |||
![]() |
2604 | 57.54 | 込 | 6ヶ月以内 | 詳細 | |||
![]() |
2606 | 36.24 | 込 | 6ヶ月以内 | 詳細 | |||
![]() |
2607 | 45.30 | 込 | 6ヶ月以内 | 詳細 | |||
![]() |
2608 | 57.54 | 込 | 6ヶ月以内 | 詳細 | |||
![]() |
4805 | 13.68 | 込 | 相談 | 詳細 |
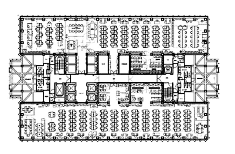
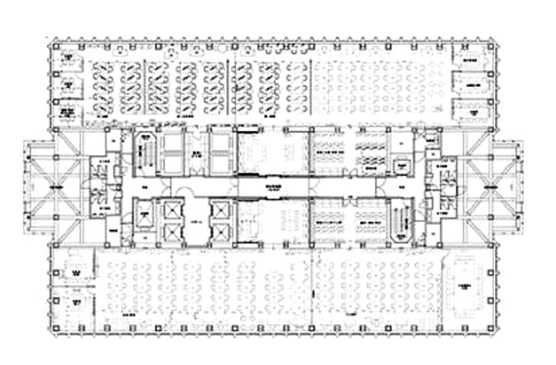
この区画にオススメのレイアウト
-
オフィスサンプルレイアウト123
- 広さ
- 53.5坪(177㎡)
- 会議室
- あり
- 従業員数
- 11
-
オフィスサンプルレイアウト119
- 広さ
- 85坪(281㎡)
- 会議室
- あり
- 従業員数
- 31
-
オフィスサンプルレイアウト112
- 広さ
- 71.3坪(236㎡)
- 会議室
- あり
- 従業員数
- 33
-
オフィスサンプルレイアウト111
- 広さ
- 85.5坪(283㎡)
- 会議室
- あり
- 従業員数
- 31
新宿野村ビル の近隣のエリア・駅から探す
お問い合わせ
無料相談で理想のオフィスを見つけましょう
東京で賃貸オフィスをお探しなら、仲介手数料0円の東京オフィスチェックにお任せください。移転をお考えの方も、お迷いの方も、メールフォームやお電話でお気軽にご相談ください。









