- 物件番号
- 56006-225741
- 情報更新日
- 2025.11.12
| 階数 | 11 |
|---|---|
| 用途/仕様 | 事務所 |
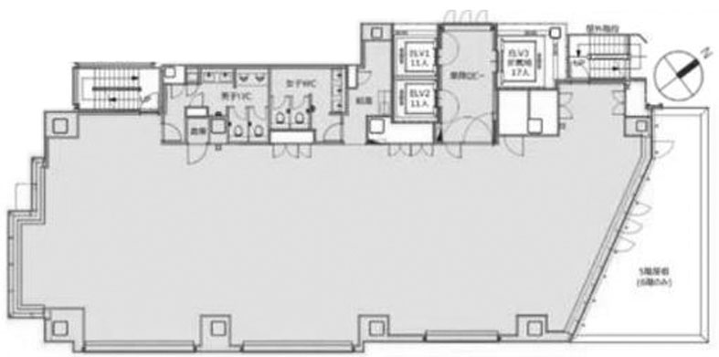
| 面積 | 111.70坪() |
| 賃料 | |
| 共益費 | |
| 預託金 | |
| 入居日 | |
| 所在地 | 東京都渋谷区千駄ヶ谷5-14-7 |
| 竣工 | 2023年12月 |
| 最寄り駅 |
JR山手線 代々木 徒歩 4分 JR中央線(快速) 新宿 徒歩 10分 |
| 構造 | S造 |
無料相談で理想のオフィスを見つけましょう
東京で賃貸オフィスをお探しなら、仲介手数料0円の東京オフィスチェックにお任せください。
移転をお考えの方も、お迷いの方も、メールフォームやお電話でお気軽にご相談ください。
ゼニス南新宿 のアクセス
ゼニス南新宿 の募集中区画
| 階数 | 面積(坪) | 賃料(円) | 共益費(円) | 預託金 | 入居可能日 | 検討リスト | 詳細 | |
|---|---|---|---|---|---|---|---|---|
![]() |
低層1 | 97.89 | 12ヶ月 | 即 | 詳細 | |||
![]() |
低層2 | 87.27 | 12ヶ月 | 即 | 詳細 | |||
![]() |
10 | 112.87 | 12ヶ月 | 即 | 詳細 |
この区画にオススメのレイアウト
-
オフィスサンプルレイアウト122
- 広さ
- 159.4坪(527㎡)
- 会議室
- あり
- 従業員数
- 50
-
オフィスサンプルレイアウト121
- 広さ
- 189.5坪(627㎡)
- 会議室
- あり
- 従業員数
- 80
-
オフィスサンプルレイアウト113
- 広さ
- 113.4坪(375㎡)
- 会議室
- あり
- 従業員数
- 84
-
オフィスサンプルレイアウト107
- 広さ
- 260.7坪(862㎡)
- 会議室
- あり
- 従業員数
- 96
ゼニス南新宿 の近隣のエリア・駅から探す
お問い合わせ
無料相談で理想のオフィスを見つけましょう
東京で賃貸オフィスをお探しなら、仲介手数料0円の東京オフィスチェックにお任せください。移転をお考えの方も、お迷いの方も、メールフォームやお電話でお気軽にご相談ください。










