- 物件番号
- 56006-171872
- 情報更新日
- 2025.11.12
| 階数 | 低層3 |
|---|---|
| 用途/仕様 | 事務所 |
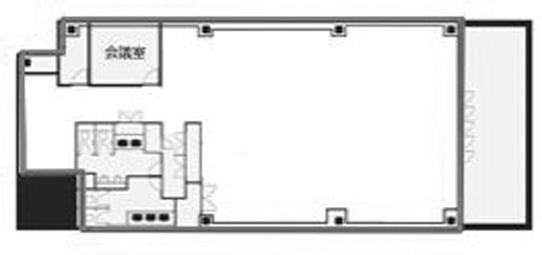
| 面積 | 74.62坪() |
| 賃料 | |
| 共益費 | |
| 預託金 | |
| 入居日 | |
| 所在地 | 東京都渋谷区千駄ヶ谷5-14-7 |
| 竣工 | 2023年12月 |
| 最寄り駅 |
JR山手線 代々木 徒歩 4分 JR中央線(快速) 新宿 徒歩 10分 |
| 構造 | S造 |
無料相談で理想のオフィスを見つけましょう
東京で賃貸オフィスをお探しなら、仲介手数料0円の東京オフィスチェックにお任せください。
移転をお考えの方も、お迷いの方も、メールフォームやお電話でお気軽にご相談ください。
ゼニス南新宿 のアクセス
ゼニス南新宿 の募集中区画
| 階数 | 面積(坪) | 賃料(円) | 共益費(円) | 預託金 | 入居可能日 | 検討リスト | 詳細 | |
|---|---|---|---|---|---|---|---|---|
![]() |
低層1 | 97.89 | 12ヶ月 | 即 | 詳細 | |||
![]() |
低層2 | 87.27 | 12ヶ月 | 即 | 詳細 | |||
![]() |
10 | 112.87 | 12ヶ月 | 即 | 詳細 |
この区画にオススメのレイアウト
-
オフィスサンプルレイアウト123
- 広さ
- 53.5坪(177㎡)
- 会議室
- あり
- 従業員数
- 11
-
オフィスサンプルレイアウト119
- 広さ
- 85坪(281㎡)
- 会議室
- あり
- 従業員数
- 31
-
オフィスサンプルレイアウト112
- 広さ
- 71.3坪(236㎡)
- 会議室
- あり
- 従業員数
- 33
-
オフィスサンプルレイアウト111
- 広さ
- 85.5坪(283㎡)
- 会議室
- あり
- 従業員数
- 31
ゼニス南新宿 の近隣のエリア・駅から探す
お問い合わせ
無料相談で理想のオフィスを見つけましょう
東京で賃貸オフィスをお探しなら、仲介手数料0円の東京オフィスチェックにお任せください。移転をお考えの方も、お迷いの方も、メールフォームやお電話でお気軽にご相談ください。










