- 物件番号
- 55245
- 情報更新日
- 2025.03.24
| 所在地 | 神奈川県横浜市神奈川区神奈川2-18-16 |
|---|---|
| 竣工 | 1990年8月 |
| 最寄り駅 | JR京浜東北線 東神奈川 徒歩 4分 |
| 構造 | SRC造 |
ポイント
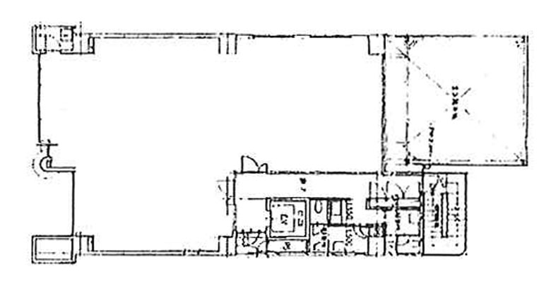
横浜市神奈川区神奈川2丁目にある賃貸オフィスビルです。JR線東神奈川駅徒歩約4分の場所にあり、アクセス便利な立地。築1990年、鉄骨鉄筋コンクリート造、地上7階の建物は新耐震基準を満たしています。基準階面積約60坪、天井高2,580mm。個別空調、24時間使用可能です。機械警備、男女別トイレあり。エレベーター1基完備。駐車場もあります。
京浜興産コヤマビル の募集中区画
| 階数 | 面積(坪) | 賃料(円) | 共益費(円) | 預託金 | 入居可能日 | 検討リスト | 詳細 | |
|---|---|---|---|---|---|---|---|---|
![]() |
2 | 57.50 | 603,750 | 86,250 | 6ヶ月 | 即 | 詳細 | |
![]() |
3 | 59.96 | 629,580 | 89,940 | 6ヶ月 | 即 | 詳細 |
無料相談で理想のオフィスを見つけましょう
東京で賃貸オフィスをお探しなら、仲介手数料0円の東京オフィスチェックにお任せください。
移転をお考えの方も、お迷いの方も、メールフォームやお電話でお気軽にご相談ください。
京浜興産コヤマビル のアクセス
京浜興産コヤマビル の近隣のエリア・駅から探す
京浜興産コヤマビル の募集終了区画
| 階数 | 面積(坪) | 賃料(円) | 共益費(円) | 預託金 | 入居可能日 | 詳細 |
|---|
京浜興産コヤマビル の条件に近い物件
お問い合わせ
無料相談で理想のオフィスを見つけましょう
東京で賃貸オフィスをお探しなら、仲介手数料0円の東京オフィスチェックにお任せください。移転をお考えの方も、お迷いの方も、メールフォームやお電話でお気軽にご相談ください。


