- 物件番号
- 54708-84124
- 情報更新日
- 2025.11.14
| 階数 | 5 |
|---|---|
| 用途/仕様 | 事務所 |
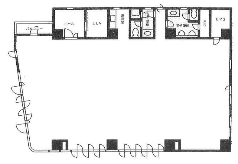
| 面積 | 57.95坪() |
| 賃料 | |
| 共益費 | |
| 預託金 | |
| 入居日 | |
| 所在地 | 東京都新宿区富久町16-6 |
| 竣工 | 1988年4月 |
| 最寄り駅 |
丸ノ内線 新宿御苑前 徒歩 5分 丸ノ内線 新宿三丁目 徒歩 6分 都営新宿線 新宿三丁目 徒歩 8分 |
| 構造 | SRC造 |
ポイント
西倉LKビルは、東京都新宿区富久町に位置する賃貸オフィスビルです。 1988年4月に竣工した地上10階建ての建物で、新耐震基準を満たしています。 最寄り駅は東京メトロ丸ノ内線の新宿御苑前駅で徒歩5分、新宿三丁目駅まで徒歩6分と、複数路線が利用可能な好立地です。基準階面積は約57.95坪、天井高2500mmで使いやすい設計となっています。 外観はタイル張りで、靖国通り沿いに建つ目を引く建物です。 トイレは男女別で専有部分にあり、テナント様の利便性に配慮されています。 新宿エリアでオフィスをお探しの企業様には、アクセス性と快適性を兼ね備えた当ビルを是非ご検討ください。
無料相談で理想のオフィスを見つけましょう
東京で賃貸オフィスをお探しなら、仲介手数料0円の東京オフィスチェックにお任せください。
移転をお考えの方も、お迷いの方も、メールフォームやお電話でお気軽にご相談ください。
西倉LKビル のアクセス
西倉LKビル の募集中区画
| 階数 | 面積(坪) | 賃料(円) | 共益費(円) | 預託金 | 入居可能日 | 検討リスト | 詳細 | |
|---|---|---|---|---|---|---|---|---|
![]() |
6 | 57.95 | 695,400 | 10ヶ月 | 2025/4/1 | 詳細 |
この区画にオススメのレイアウト
-
オフィスサンプルレイアウト123
- 広さ
- 53.5坪(177㎡)
- 会議室
- あり
- 従業員数
- 11
-
オフィスサンプルレイアウト119
- 広さ
- 85坪(281㎡)
- 会議室
- あり
- 従業員数
- 31
-
オフィスサンプルレイアウト112
- 広さ
- 71.3坪(236㎡)
- 会議室
- あり
- 従業員数
- 33
-
オフィスサンプルレイアウト111
- 広さ
- 85.5坪(283㎡)
- 会議室
- あり
- 従業員数
- 31
西倉LKビル の近隣のエリア・駅から探す
お問い合わせ
無料相談で理想のオフィスを見つけましょう
東京で賃貸オフィスをお探しなら、仲介手数料0円の東京オフィスチェックにお任せください。移転をお考えの方も、お迷いの方も、メールフォームやお電話でお気軽にご相談ください。

