- 物件番号
- 54293-62863
- 情報更新日
- 2024.11.01
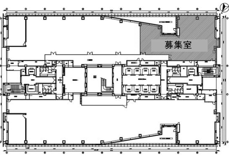
| 階数 | 10南 |
|---|---|
| 用途/仕様 | 事務所 |
| 面積 | 324.93坪() |
| 賃料 | |
| 共益費 | |
| 預託金 | |
| 入居日 | |
| 所在地 | 東京都港区台場2-3-1 |
| 竣工 | 2001年2月 |
| 最寄り駅 |
ゆりかもめ お台場海浜公園 徒歩 2分 りんかい線 東京テレポート 徒歩 3分 |
| 構造 | SRC造 |
ポイント
トレードピアお台場は、東京都港区台場2-3-1に位置するオフィスビルです。竣工は2001年、最寄り駅はゆりかもめ「お台場海浜公園」駅(徒歩2分)です。重厚感のある外観と管理の行き届いた大型ハイグレードビル。1階には車寄せやタクシー乗り場があり、テナント用の貸会議室も完備。OAフロア・男女別室外トイレ・機械警備・駐車場など充実した設備を備えています。お台場エリアの中心に位置し、周辺には飲食店やコンビニ、商業施設も多数。ぜひ一度ご内見ください。
無料相談で理想のオフィスを見つけましょう
東京で賃貸オフィスをお探しなら、仲介手数料0円の東京オフィスチェックにお任せください。
移転をお考えの方も、お迷いの方も、メールフォームやお電話でお気軽にご相談ください。
トレードピアお台場 のアクセス
トレードピアお台場 の募集中区画
| 階数 | 面積(坪) | 賃料(円) | 共益費(円) | 預託金 | 入居可能日 | 検討リスト | 詳細 | |
|---|---|---|---|---|---|---|---|---|
![]() |
7南 | 55.83 | 相談 | 込 | 8ヶ月 | 即 | 詳細 | |
![]() |
22南 | 106.12 | 8ヶ月 | 即 | 詳細 | |||
![]() |
10南 | 111.66 | 相談 | 詳細 | ||||
![]() |
16南 | 84.29 | 即 | 詳細 | ||||
![]() |
19北1 | 55.83 | 即 | 詳細 | ||||
![]() |
10南 | 55.83 | 込 | 8ヶ月 | 相談 | 詳細 | ||
![]() |
7南 | 55.83 | 込 | 即 | 詳細 |
この区画にオススメのレイアウト
-
オフィスサンプルレイアウト122
- 広さ
- 159.4坪(527㎡)
- 会議室
- あり
- 従業員数
- 50
-
オフィスサンプルレイアウト121
- 広さ
- 189.5坪(627㎡)
- 会議室
- あり
- 従業員数
- 80
-
オフィスサンプルレイアウト113
- 広さ
- 113.4坪(375㎡)
- 会議室
- あり
- 従業員数
- 84
-
オフィスサンプルレイアウト107
- 広さ
- 260.7坪(862㎡)
- 会議室
- あり
- 従業員数
- 96
トレードピアお台場 の近隣のエリア・駅から探す
お問い合わせ
無料相談で理想のオフィスを見つけましょう
東京で賃貸オフィスをお探しなら、仲介手数料0円の東京オフィスチェックにお任せください。移転をお考えの方も、お迷いの方も、メールフォームやお電話でお気軽にご相談ください。







