- 物件番号
- 53534-61789
- 情報更新日
- 2024.12.25
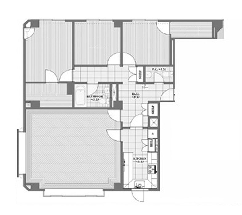
| 階数 | 204 |
|---|---|
| 用途/仕様 | SOHO |
| 面積 | 35.93坪() |
| 賃料 | |
| 共益費 | |
| 預託金 | |
| 入居日 | |
| 所在地 | 東京都港区西麻布4-14-12 |
| 竣工 | 1977年7月 |
| 最寄り駅 | 日比谷線 広尾 徒歩 8分 |
| 構造 | RC造 |
ポイント
東京都港区西麻布にある地上4階、地下1階の賃貸オフィス物件です。 1977年築、鮮やかなホワイトベージュカラーの外観で、全体的に穏やかで気品を感じさせる綺麗な建物として人気があります。 最寄りは、日比谷線広尾駅から徒歩8分です。 広尾ガーデンフォレストや日赤医療センターに近く、店舗施設が少なく、緑豊かな閑静なハイソサエティな魅力ある住宅地にあります。 貸室は、事務所・SOHOに最適なゆとりの1LDK〜3LDKタイプが中心です。
無料相談で理想のオフィスを見つけましょう
東京で賃貸オフィスをお探しなら、仲介手数料0円の東京オフィスチェックにお任せください。
移転をお考えの方も、お迷いの方も、メールフォームやお電話でお気軽にご相談ください。
シェ麻布 のアクセス
シェ麻布 の募集中区画
| 階数 | 面積(坪) | 賃料(円) | 共益費(円) | 預託金 | 入居可能日 | 検討リスト | 詳細 | |
|---|---|---|---|---|---|---|---|---|
![]() |
202~203 | 14.23 | 300,000 | 6ヶ月 | 即 | 詳細 | ||
![]() |
301 | 35.23 | 700,000 | 6ヶ月 | 3ヶ月以内 | 詳細 | ||
![]() |
302~303 | 14.23 | 300,000 | 6ヶ月 | 即 | 詳細 |
この区画にオススメのレイアウト
-
オフィスサンプルレイアウト120
- 広さ
- 30.2坪(100㎡)
- 会議室
- あり
- 従業員数
- 12
-
オフィスサンプルレイアウト118
- 広さ
- 40.2坪(133㎡)
- 会議室
- なし
- 従業員数
- 20
-
オフィスサンプルレイアウト117
- 広さ
- 22.6坪(75㎡)
- 会議室
- あり
- 従業員数
- 11
-
オフィスサンプルレイアウト116
- 広さ
- 39.9坪(132㎡)
- 会議室
- あり
- 従業員数
- 11
シェ麻布 の近隣のエリア・駅から探す
お問い合わせ
無料相談で理想のオフィスを見つけましょう
東京で賃貸オフィスをお探しなら、仲介手数料0円の東京オフィスチェックにお任せください。移転をお考えの方も、お迷いの方も、メールフォームやお電話でお気軽にご相談ください。










