- 物件番号
- 53238-75812
- 情報更新日
- 2025.11.14
| 階数 | 2 |
|---|---|
| 用途/仕様 | 事務所 |
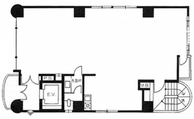
| 面積 | 29.87坪() |
| 賃料 | |
| 共益費 | |
| 預託金 | |
| 入居日 | |
| 所在地 | 東京都港区新橋5-7-12 |
| 竣工 | 1989年1月 |
| 最寄り駅 |
都営三田線 御成門 徒歩 7分 JR山手線 新橋 徒歩 7分 |
| 構造 | SRC造 |
ポイント
新橋駅より徒歩8分、港区新橋5丁目にある賃貸オフィスビルです。1989年竣工、鉄骨鉄筋コンクリート造(SRC造) で、新耐震基準を満たしています。低層階は白色、上層階は淡い茶色の外壁で、各階に大きめの窓が四枚並ぶ細身のデザインが特徴的です。地上10階・地下1階建てで、エレベーターは1基設置されています。基準階面積は約31坪で、バルコニー付きです。
無料相談で理想のオフィスを見つけましょう
東京で賃貸オフィスをお探しなら、仲介手数料0円の東京オフィスチェックにお任せください。
移転をお考えの方も、お迷いの方も、メールフォームやお電話でお気軽にご相談ください。
ひのき屋ビル のアクセス
ひのき屋ビル の募集中区画
| 階数 | 面積(坪) | 賃料(円) | 共益費(円) | 預託金 | 入居可能日 | 検討リスト | 詳細 | |
|---|---|---|---|---|---|---|---|---|
![]() |
7 | 31.14 | 404,820 | 108,990 | 10ヶ月 | 即 | 詳細 |
この区画にオススメのレイアウト
-
オフィスサンプルレイアウト120
- 広さ
- 30.2坪(100㎡)
- 会議室
- あり
- 従業員数
- 12
-
オフィスサンプルレイアウト118
- 広さ
- 40.2坪(133㎡)
- 会議室
- なし
- 従業員数
- 20
-
オフィスサンプルレイアウト117
- 広さ
- 22.6坪(75㎡)
- 会議室
- あり
- 従業員数
- 11
-
オフィスサンプルレイアウト116
- 広さ
- 39.9坪(132㎡)
- 会議室
- あり
- 従業員数
- 11
ひのき屋ビル の近隣のエリア・駅から探す
お問い合わせ
無料相談で理想のオフィスを見つけましょう
東京で賃貸オフィスをお探しなら、仲介手数料0円の東京オフィスチェックにお任せください。移転をお考えの方も、お迷いの方も、メールフォームやお電話でお気軽にご相談ください。




