- 物件番号
- 52693-81132
- 情報更新日
- 2025.11.14
| 階数 | 1 |
|---|---|
| 用途/仕様 | 店舗 |
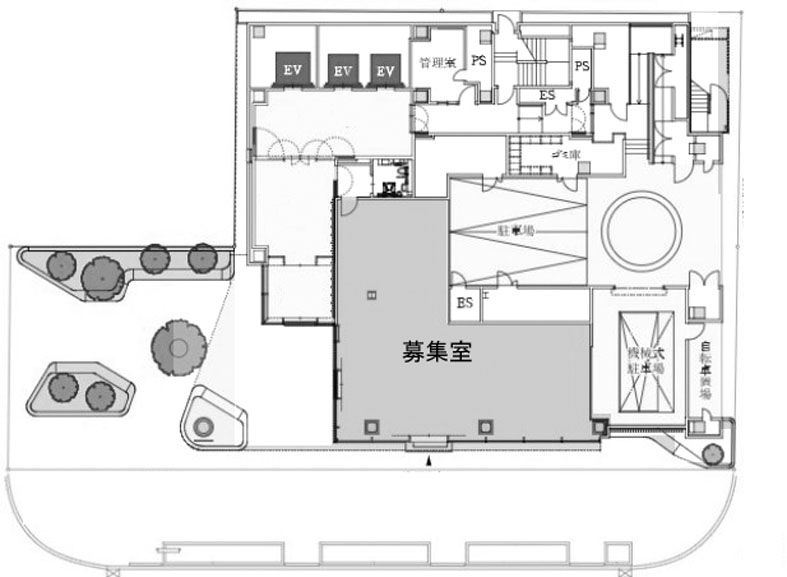
| 面積 | 42.68坪() |
| 賃料 | |
| 共益費 | |
| 預託金 | |
| 入居日 | |
| 所在地 | 東京都中央区八丁堀1 |
| 竣工 | 2025年2月 |
| 最寄り駅 |
銀座線 日本橋 徒歩 8分 銀座線 京橋 徒歩 8分 日比谷線 八丁堀 徒歩 5分 東西線 茅場町 徒歩 6分 都営浅草線 宝町 徒歩 7分 JR山手線 東京 徒歩 10分 |
| 構造 | S造 |
ポイント
2025年1月竣工予定、地上12階建ての賃貸オフィスビルです。貸室は1フロア約178坪で、柱が少なく、使い勝手のよいオフィス空間です。周辺地域に溶け込む緑豊かなデザインと、天井高7mの高級感のあるエントランスで来訪者を迎えてくれます。屋上には入居テナント様専用の屋上テラス(喫煙所併設)も設けられます。東京駅を含む6駅10路線のマルチアクセスで、交通アクセスも抜群の立地です。
無料相談で理想のオフィスを見つけましょう
東京で賃貸オフィスをお探しなら、仲介手数料0円の東京オフィスチェックにお任せください。
移転をお考えの方も、お迷いの方も、メールフォームやお電話でお気軽にご相談ください。
八重洲通フィルテラス のアクセス
八重洲通フィルテラス の募集中区画
| 階数 | 面積(坪) | 賃料(円) | 共益費(円) | 預託金 | 入居可能日 | 検討リスト | 詳細 | |
|---|---|---|---|---|---|---|---|---|
![]() |
1 | 42.68 | 2025/2/1 | 詳細 |
この区画にオススメのレイアウト
-
オフィスサンプルレイアウト120
- 広さ
- 30.2坪(100㎡)
- 会議室
- あり
- 従業員数
- 12
-
オフィスサンプルレイアウト118
- 広さ
- 40.2坪(133㎡)
- 会議室
- なし
- 従業員数
- 20
-
オフィスサンプルレイアウト117
- 広さ
- 22.6坪(75㎡)
- 会議室
- あり
- 従業員数
- 11
-
オフィスサンプルレイアウト116
- 広さ
- 39.9坪(132㎡)
- 会議室
- あり
- 従業員数
- 11
八重洲通フィルテラス の条件に近い物件
八重洲通フィルテラス の近隣のエリア・駅から探す
お問い合わせ
無料相談で理想のオフィスを見つけましょう
東京で賃貸オフィスをお探しなら、仲介手数料0円の東京オフィスチェックにお任せください。移転をお考えの方も、お迷いの方も、メールフォームやお電話でお気軽にご相談ください。





