- 物件番号
- 52115-80829
- 情報更新日
- 2025.11.14
| 階数 | 4 |
|---|---|
| 用途/仕様 | 事務所 |
| 面積 | 42.07坪() |
| 賃料 | |
| 共益費 | |
| 預託金 | |
| 入居日 | |
| 所在地 | 東京都千代田区九段北1-3-3 |
| 竣工 | 1991年4月 |
| 最寄り駅 |
東西線 九段下 徒歩 1分 半蔵門線 九段下 徒歩 1分 |
| 構造 | SRC造 |
ポイント
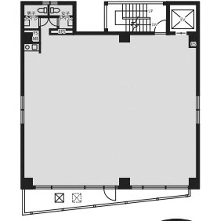
九段下東急真サクラビルは東京都千代田区九段北1-3-3に位置するオフィスビルです。竣工は1991年、最寄り駅は東京メトロ東西線「九段下」駅徒歩1分。 九段下駅徒歩1分の好立地で、新耐震基準を満たした貸事務所です。貸室は正方形に近い形状で無柱設計のため、機能的なレイアウトが可能。1フロア1テナントで、男女別トイレも完備されており、使い勝手の良いオフィスです。
無料相談で理想のオフィスを見つけましょう
東京で賃貸オフィスをお探しなら、仲介手数料0円の東京オフィスチェックにお任せください。
移転をお考えの方も、お迷いの方も、メールフォームやお電話でお気軽にご相談ください。
九段下東急真サクラビル のアクセス
九段下東急真サクラビル の募集中区画
この区画にオススメのレイアウト
-
オフィスサンプルレイアウト120
- 広さ
- 30.2坪(100㎡)
- 会議室
- あり
- 従業員数
- 12
-
オフィスサンプルレイアウト118
- 広さ
- 40.2坪(133㎡)
- 会議室
- なし
- 従業員数
- 20
-
オフィスサンプルレイアウト117
- 広さ
- 22.6坪(75㎡)
- 会議室
- あり
- 従業員数
- 11
-
オフィスサンプルレイアウト116
- 広さ
- 39.9坪(132㎡)
- 会議室
- あり
- 従業員数
- 11
九段下東急真サクラビル の条件に近い物件
九段下東急真サクラビル の近隣のエリア・駅から探す
お問い合わせ
無料相談で理想のオフィスを見つけましょう
東京で賃貸オフィスをお探しなら、仲介手数料0円の東京オフィスチェックにお任せください。移転をお考えの方も、お迷いの方も、メールフォームやお電話でお気軽にご相談ください。







