- 物件番号
- 153621-171883
- 情報更新日
- 2025.11.12
| 階数 | 1A |
|---|---|
| 用途/仕様 | 店舗 |
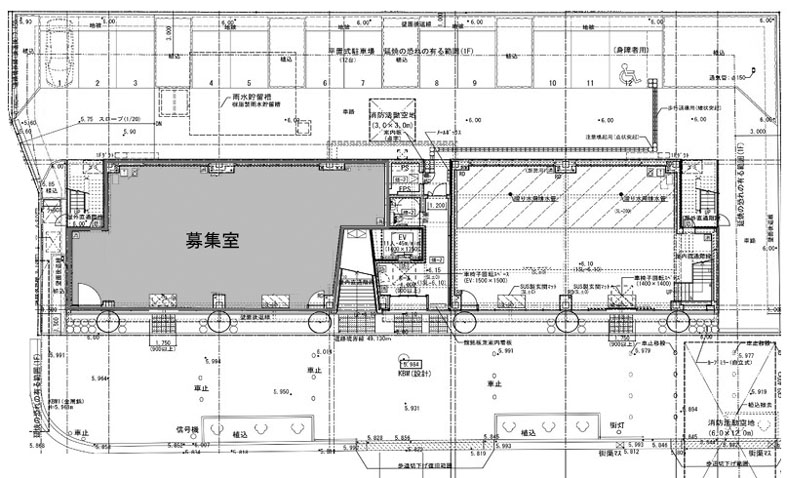
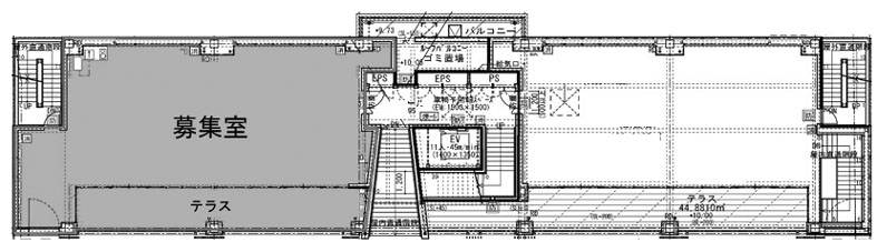
| 面積 | 58.01坪() |
| 賃料 | |
| 共益費 | |
| 預託金 | |
| 入居日 | |
| 所在地 | 神奈川県藤沢市片瀬海岸2-18-21 |
| 竣工 | 2015年6月 |
| 最寄り駅 | 小田急江ノ島線 片瀬江ノ島 徒歩 6分 |
| 構造 | S造 |
ポイント
片瀬江ノ島駅から徒歩5分、海岸通り沿いに建つ地上4階建ての商業ビルです。2015年竣工の近代的な外観が特徴で、3階には56.36坪の広々とした空間があります。24時間利用可能で、セキュリティも万全です。目の前に広がる海の眺望が魅力で、観光地としても人気の江ノ島エリアでの出店をお考えの企業様にぴったりの物件です。
無料相談で理想のオフィスを見つけましょう
東京で賃貸オフィスをお探しなら、仲介手数料0円の東京オフィスチェックにお任せください。
移転をお考えの方も、お迷いの方も、メールフォームやお電話でお気軽にご相談ください。
リードシー片瀬江ノ島ビル のアクセス
リードシー片瀬江ノ島ビル の募集中区画
| 階数 | 面積(坪) | 賃料(円) | 共益費(円) | 預託金 | 入居可能日 | 検討リスト | 詳細 | |
|---|---|---|---|---|---|---|---|---|
![]() |
2C | 53.71 | 1,074,200 | 即 | 詳細 |
この区画にオススメのレイアウト
-
オフィスサンプルレイアウト123
- 広さ
- 53.5坪(177㎡)
- 会議室
- あり
- 従業員数
- 11
-
オフィスサンプルレイアウト119
- 広さ
- 85坪(281㎡)
- 会議室
- あり
- 従業員数
- 31
-
オフィスサンプルレイアウト112
- 広さ
- 71.3坪(236㎡)
- 会議室
- あり
- 従業員数
- 33
-
オフィスサンプルレイアウト111
- 広さ
- 85.5坪(283㎡)
- 会議室
- あり
- 従業員数
- 31
リードシー片瀬江ノ島ビル の条件に近い物件
-
ROOTs Yokohama Yoshinocho
神奈川県横浜市南区吉野町3-30
- 面積
- 18.20坪 〜
- 空きフロア
- 1
- 最寄り駅
- 吉野町 徒歩 4分
-
桂台サンユービル
神奈川県横浜市栄区桂台中15-1
- 面積
- 63.66坪 〜
- 空きフロア
- 3
- 最寄り駅
- 大船 徒歩 30分
-
YS横浜西口ビル
〒221-0835 神奈川県横浜市神奈川区鶴屋町2-25-1
- 面積
- 70.99坪 〜
- 空きフロア
- 1
- 最寄り駅
- 横浜 徒歩 3分
-
東戸塚東口ビルディング
神奈川県横浜市戸塚区品濃町542-6
- 面積
- 38.87坪 〜
- 空きフロア
- 1
- 最寄り駅
- 東戸塚 徒歩 3分
リードシー片瀬江ノ島ビル の近隣のエリア・駅から探す
お問い合わせ
無料相談で理想のオフィスを見つけましょう
東京で賃貸オフィスをお探しなら、仲介手数料0円の東京オフィスチェックにお任せください。移転をお考えの方も、お迷いの方も、メールフォームやお電話でお気軽にご相談ください。

