- 物件番号
- 100308-239427
- 情報更新日
- 2025.06.04
| 階数 | 2-2 |
|---|---|
| 用途/仕様 | 事務所 |
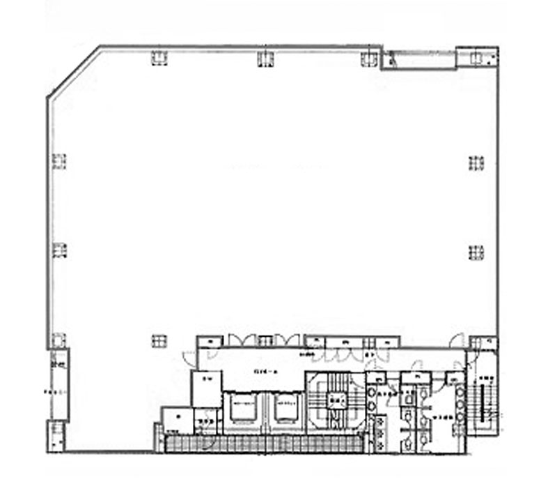
| 面積 | 131.63坪(435.13㎡) |
| 賃料 | |
| 共益費 | |
| 預託金 | |
| 入居日 | |
| 所在地 | 東京都豊島区南池袋1-19-6 |
| 竣工 | 2002年7月 |
| 最寄り駅 |
JR山手線 池袋 徒歩 4分 JR埼京線 池袋 徒歩 4分 |
| 構造 | SRC造 |
ポイント
オリックス池袋ビルは、東京都豊島区南池袋1丁目に位置する賃貸オフィスビルです。JR山手線・埼京線の池袋駅から徒歩4分という好立地で、アクセス性に優れています。2002年7月竣工の地上9階・地下1階建ての建物で、基準階面積は約185坪。天井高2,700mmと開放的な空間が特徴で、OAフロアや個別空調を完備。明治通り沿いに立地し、駅前の賑わいあるエリアで、周辺には大型百貨店や飲食店が多数あり。ビジネス環境と利便性を兼ね備えた、池袋エリアでの事業展開に適したオフィスビルです。
無料相談で理想のオフィスを見つけましょう
東京で賃貸オフィスをお探しなら、仲介手数料0円の東京オフィスチェックにお任せください。
移転をお考えの方も、お迷いの方も、メールフォームやお電話でお気軽にご相談ください。
オリックス池袋ビル のアクセス
オリックス池袋ビル の募集中区画
この区画にオススメのレイアウト
-
オフィスサンプルレイアウト122
- 広さ
- 159.4坪(527㎡)
- 会議室
- あり
- 従業員数
- 50
-
オフィスサンプルレイアウト121
- 広さ
- 189.5坪(627㎡)
- 会議室
- あり
- 従業員数
- 80
-
オフィスサンプルレイアウト113
- 広さ
- 113.4坪(375㎡)
- 会議室
- あり
- 従業員数
- 84
-
オフィスサンプルレイアウト107
- 広さ
- 260.7坪(862㎡)
- 会議室
- あり
- 従業員数
- 96
オリックス池袋ビル の近隣のエリア・駅から探す
お問い合わせ
無料相談で理想のオフィスを見つけましょう
東京で賃貸オフィスをお探しなら、仲介手数料0円の東京オフィスチェックにお任せください。移転をお考えの方も、お迷いの方も、メールフォームやお電話でお気軽にご相談ください。



